Standort:
Planung:
Leistung:
Status:
Nutzfläche:
Baumasse:
Ausstattung:
Going am Wilden Kaiser | Österreich
2019
Entwurf
Studie abgeschlossen
~ 2.900 m²
~ 11.850 m³
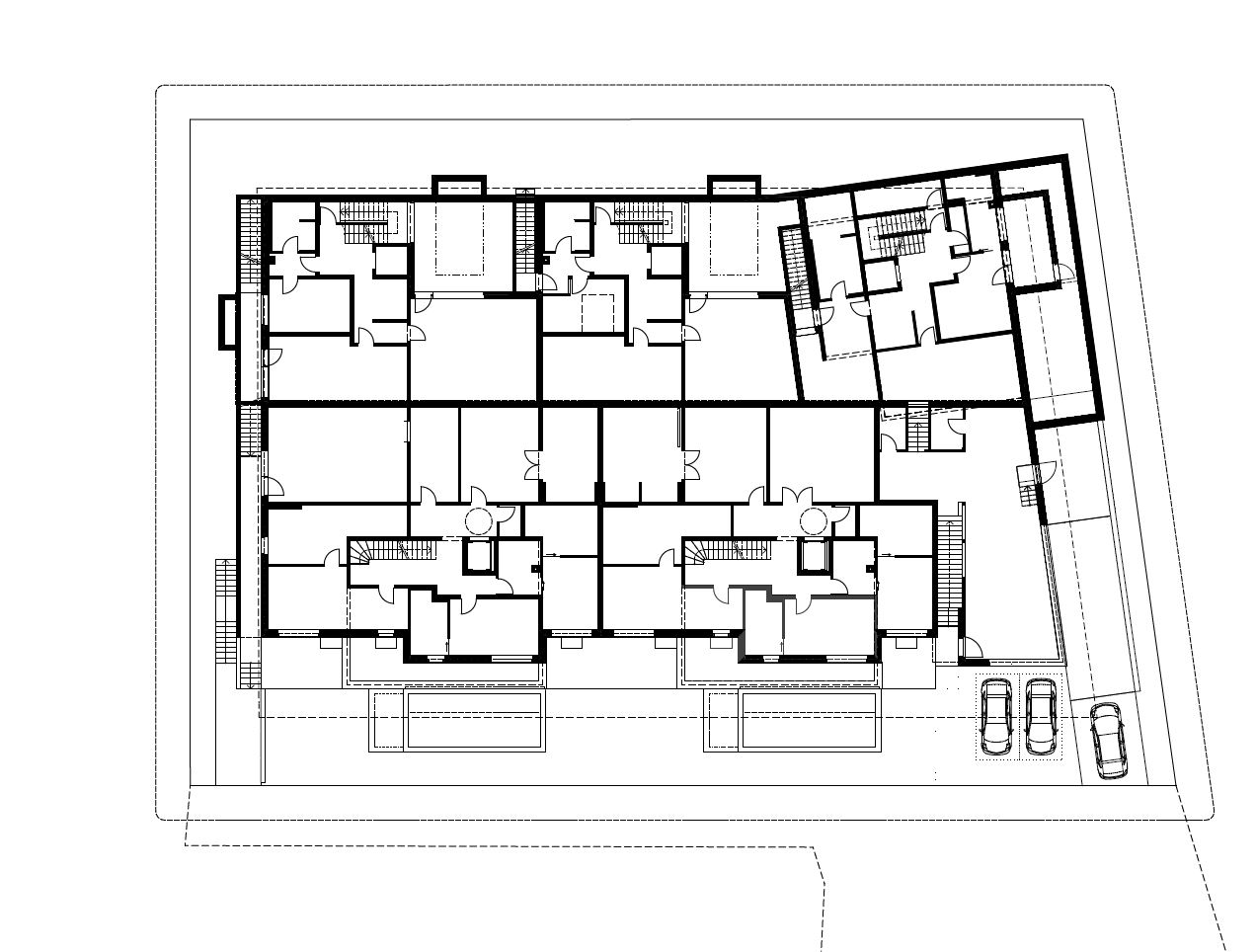
5 Personenaufzug, 5 Aussenpools, 1 Innenpool, Wellness- und Spa-Bereich, Tiefgarage für 16 PKW
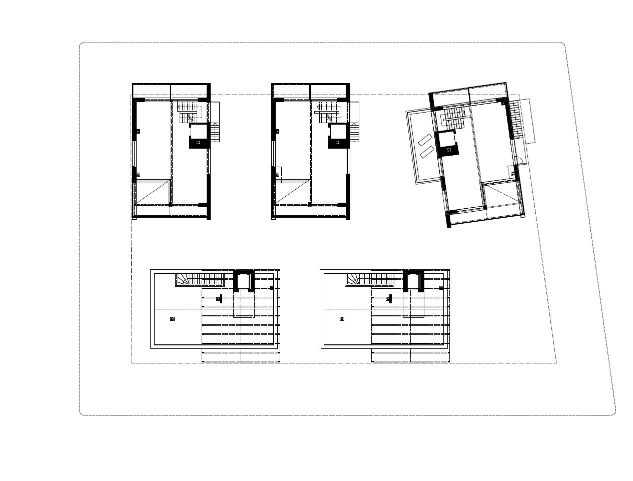
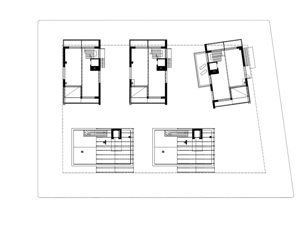
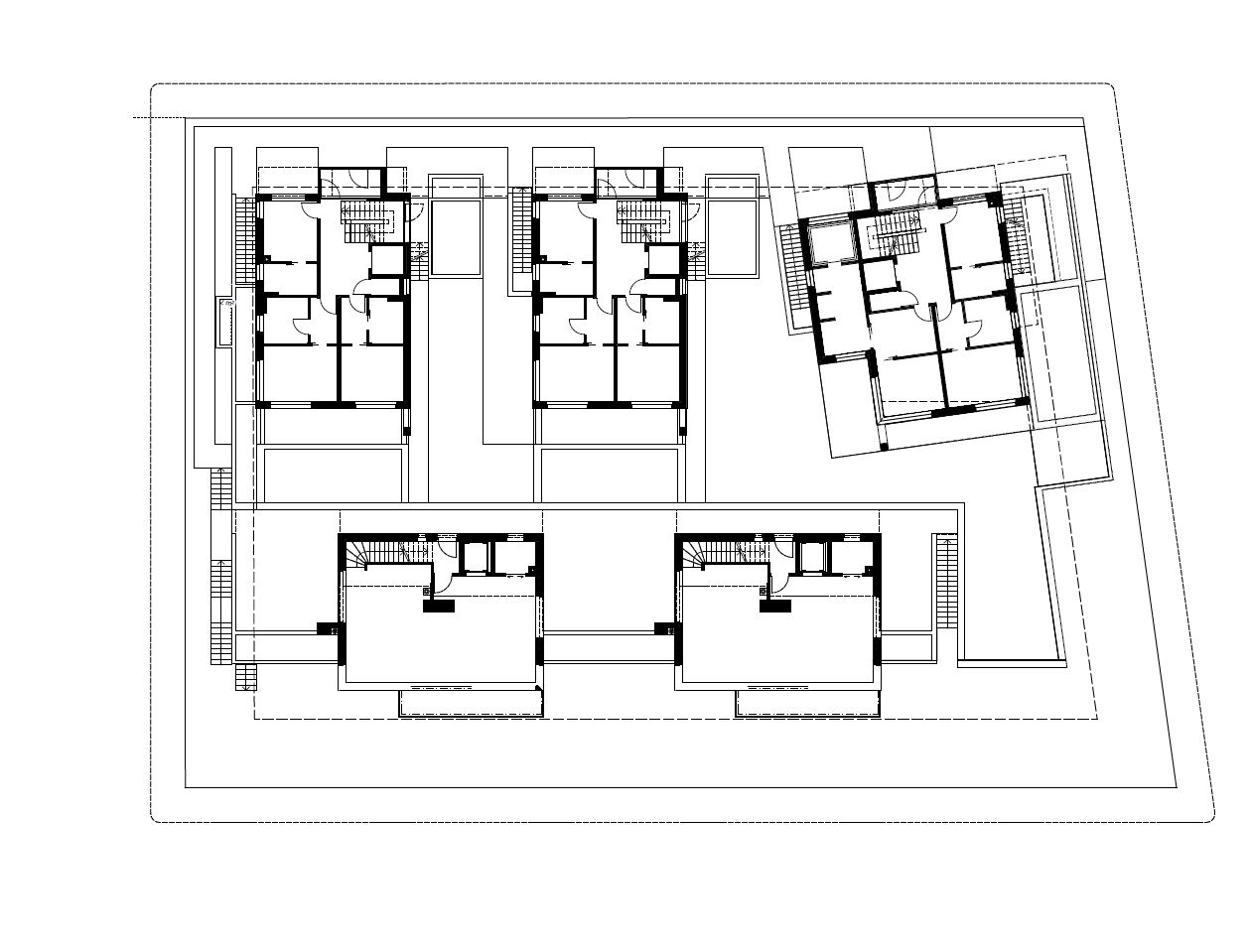
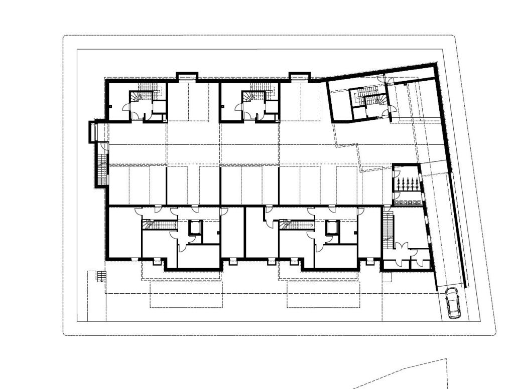
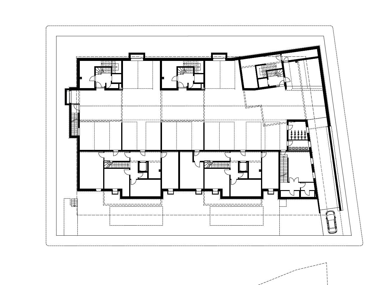
Auf dem Südhang entsteht ein Ensemble aus fünf hochwertigen Wohnhäusern mit traumhaften Ausblick auf das Kaiser Gebirge sowie das Kitzbüheler Horn. Jedes der Einheiten besitzt neben drei Schlafzimmern einen eigenen Wellnessbereich sowie einen Aussenpool. Eine gemeinsame Tiefgarage bietet Platz für drei Fahrzeuge pro Einheit. Des Weiteren existiert ein Multifunktionsraum zur gemeinschaftlichen Verwendung. Während die drei nördlichen Gebäude eine moderne Interpretation des klassischen Tiroler-Hauses darstellen, wurden die zwei südlichen Einheiten mit Flachdächern ausgeführt. Eine filigran wirkende Stahlkonstruktion in Form eines Satteldachs erlaubt die Benützung der Dachterrasse bei allen Witterungsverhältnissen.














